Pinnacle Park Center

Pinnacle Park Lot
  1. Overview
  2. Specifications
  3. Access

Unique site positioned near one of the largest industrial parks in Apex

  • Contact Joanna Helms, Apex Economic Development at (919) 372-7461 or Email Joanna Helms for more information.
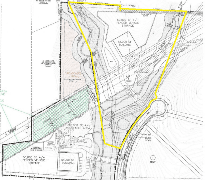
Pinnacle Park lot concept plan